Progettazione e Realizzazione
Impianti Elettrici
Civili Industriali e Fotovoltaici
Progettazione Impianti Elettrici CEI 64-8
Progettazione e Realizzazione di Impianti Elettrici secondo Norma CEI in riferimento al DM 37/08
Verifiche Periodiche dell'Impianto di Terra
Dei dispositivi di protezione contro le scariche atmosferiche
Degli impianti elettrici con pericolo di esplosione
DICO
Documentazione di Progetto
Registri di Verifica
Calcolo del Rischio Scariche Atmosferiche
Verifica degli Impianti DPR 462/01
Servizi Personalizzati per Elettricisti ed Installatori
Diagnosi ed Efficientamento Energetico UNI CEI EN 16247
Audit Energetico dell'Impianto
Efficientamento Energetico
Realizzazione e Valutazione dell'Impianto e dei consumi
APE
L'Importanza di un Progetto realizzato secondo
"La Regola dell'Arte"
Siamo uno studio specializzato nella progettazione e realizzazione di Impianti Elettrici Civili, industriali e Fotovoltaici nel rispetto delle leggi e delle normative vigenti che investe nella professionalità e nell'aggiornamento continuo


400+
15+
Anni di Esperienza nel settore
Commesse a termine
Ci avvaliamo della migliore rete di professionisti e installatori per la realizzazione dei vostri Impianti.
L'obbiettivo è di ottimizzare la qualità dell'Impianto in funzione dei costi, mettendo al centro le richieste del Cliente con la garanzia di un servizio rapido e di qualità
Attraverso competenze tecniche trasversali maturate in più di 15 anni di esperienza negli ambiti:
Civile, Medicale, Industriale, Fotovoltaico, Ferroviario e HVAC
Diamo un servizio completo e di qualità nella progettazione e realizzazione degli Impianti Elettrici avvalendoci dei migliori Strumenti e Software disponibili.
La migliore rete di Professionisti ed Installatori per ogni specializzazione




Competenze Tecniche Trasversali al tuo servizio


Servizi di Progettazione e Verifica
Non solo Progettazione, offriamo il servizio di Verifica periodica obbligatoria dell'Impianto di Terra
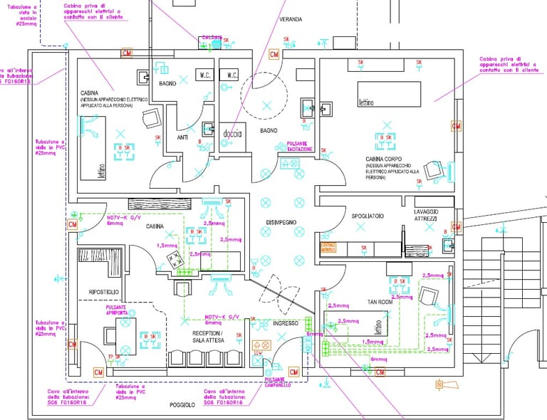
Progettazione Impianti Elettrici Civili ed Industriali
Nuovi Impianti, Rifacimenti, adeguamenti e manutenzioni, offriamo per ogni richiesta la massima professionalità.
Progettiamo e realizziamo Impianti Elettrici nel settore Civile ed Industriale fornendo tutta la Documentazione necessaria secondo il DM 37/08, la norma CEI sempre in conformità alla "Regola dell'Arte" Lg.186/1968.


Verifiche Periodiche dell'Impianto di Terra
Offriamo servizi di verifica periodica degli impianti elettrici di terra secondo il DPR 462/01, garantendo sicurezza e la conformità degli impianti.
Offriamo inoltre gli adeguamenti dell'impianto verificato se non conforme, proponendo le migliori soluzioni per il suo adeguamento.


Diagnosi Energetica ed Efficientamento dell'Impianto per abbattere i costi
Con un Impianto Elettrico energeticamente efficiente ci si guadagna due volte


Diagnosi Energetica dell'Impianto
La Diagnosi Elettrica dell'Impianto assume una sempre più fondamentale rilevanza dati i costi sempre più elevati dell'energia.
Per tale motivo noi forniamo un servizio di AUDIT ENERGETICO per effettuare una Analisi per la valutazione dei consumi e della loro natura energetica, proponendo soluzioni per la riduzione dei costi quali: Rifasamenti, sostituzione di componentistica obsoleta, riordino dell'Impianto, equilibratura delle fasi, etc.


Proposte di Efficientamento dopo l'Audit Energetico
Un Impianto Elettrico aggiornato è un Impianto EFFICIENTE, SICURO e PERFORMANTE.
Grazie ad una accurata Analisi dell'Impianto e dei suoi utilizzatori promuoviamo e proponiamo un efficientamento sia dal punto di vista quantitativo che qualitativo.
Servizi
Progettazione e realizzazione di impianti elettrici e fotovoltaici.
CONTATTI
Progetti
info@asprogetti.it
+39 340 7744734
© 2025. All rights reserved.
Diagnosi ed efficientamento energetico.
Supporto ed affiancamento ad elettricisti ed installatori.
Ing. Alessandro Stivanello
Iscritto All'Ordine dei Periti Industriali e dei Periti Industriali Laureati della Provincia di Padova al N° 1754
alessandro.stivanello@pec.perind.it
P. IVA










